Модель :
DS-110Тип :
Plunger PumpГладить :
110Диаметр цилиндра :
45Поток :
129Давление :
35Порт доставки :
Shanghai Port, ChinaГарантия :
12 MonthsDS110 электрический плунжерный насос, служащий основным силовым насосом для гидравлических силовых установок (ГСУ) на морских буровых платформах, разработан на основе проверенной серии насосов. Благодаря улучшению материалов и характеристик критически важных компонентов, подверженных износу, а также оптимизации конструкции, этот насос значительно продлевает свой расчетный срок службы. Этот насос, разработанный для морской среды, использует гидравлическую жидкость на водной основе и может перекачивать чистую воду, эмульсии, ингибиторы коррозии и нейтральные масла с вязкостью, близкой к вязкости воды. Он подходит для всех применений, требующих силового агрегата или испытаний под давлением, включая сосуды под давлением, котлы, трубопроводы и клапаны. Он особенно хорошо подходит для таких условий эксплуатации, как устья скважин нефтяных месторождений и морские буровые платформы.
Помимо соответствия номинальным требованиям по расходу и давлению, плунжерный насос также должен обеспечивать длительную стабильную работу во влажных и высокосоленых условиях морской среды.
Технические параметры и характеристики
| Тип | Горизонтальный трехцилиндровый поршневой насос одностороннего действия |
| Ход поршня (мм) | 110 |
| Диаметр цилиндра (мм) | 45 |
| Расход (л/мин) | 129 |
| Давление (МПа) | 35 |
| Скорость насоса (об/мин) | 246 |
| Номинальная мощность (кВт) | 90 |
| Размеры (мм) | 1400×1200×1900 |
| Вес (кг) | 2530 |
| Метод подключения привода | Ременной привод |
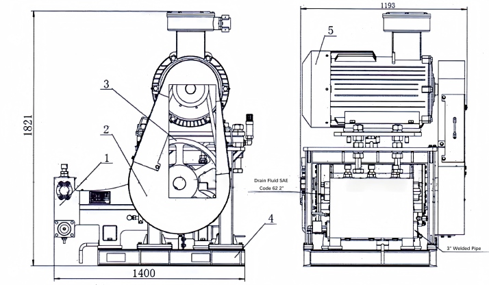
Инженерное дело размерный контур

Преимущества
